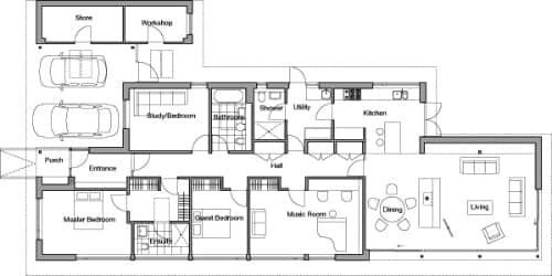
Designed by Simon Winstanley Architects, The Houl house is a great home away from the city. Not only does it impress with its exquisite architecture but it’s also a very energy-efficient home that will help you save our precious planet while enjoying your time at home. The Houl is a “zero carbon” house as it uses “very high levels of insulation” and it minimizes air infiltration thanks to an air source pump with a “whole house heat recovery ventilation system.” Add to that a wind turbine for electricity and you end up with a more than eco-friendly home. On top of these innovative building ideas, the interior of the house is more than welcoming and seems to be just waiting for you to come home from work, which is one more reason to consider ordering such a custom house for yourself.











